Ruime gezinswoning met grote koer (overdekt terras) nabij het Rivierenhof te Deurne
Prijs op aanvraag 2100 AntwerpenRoutebeschrijving
In de charmante Plankenbergstraat in Deurne ontdek je deze unieke woning die authenticiteit en modern comfort perfect combineert. Met maar liefst vijf slaapkamers – uitbreidbaar tot acht – en een gezellige gedeeltelijk overdekte binnenkoer is dit een ideale thuis voor grote gezinnen, co-housing of wie gewoon houdt van veel ruimte.
Ligging
Je woont hier rustig, maar toch centraal: vlak bij de levendige Turnhoutsebaan, met tramverbindingen richting Antwerpen-centrum, én op wandelafstand van het groene Rivierenhof.
Indeling
Achter de authentieke koetspoort bevindt zich de inkomhal en een charmante binnenkoer met stadstuin. De leefruimte vloeit door naar de eetkamer en een volledig vernieuwde, op maat gemaakte keuken met een stijlvol Lacanche-fornuis. Aansluitend vind je een badkamer met douche en toilet, een ruime berging/wasplaats en toegang tot de tuin met overdekt terras.
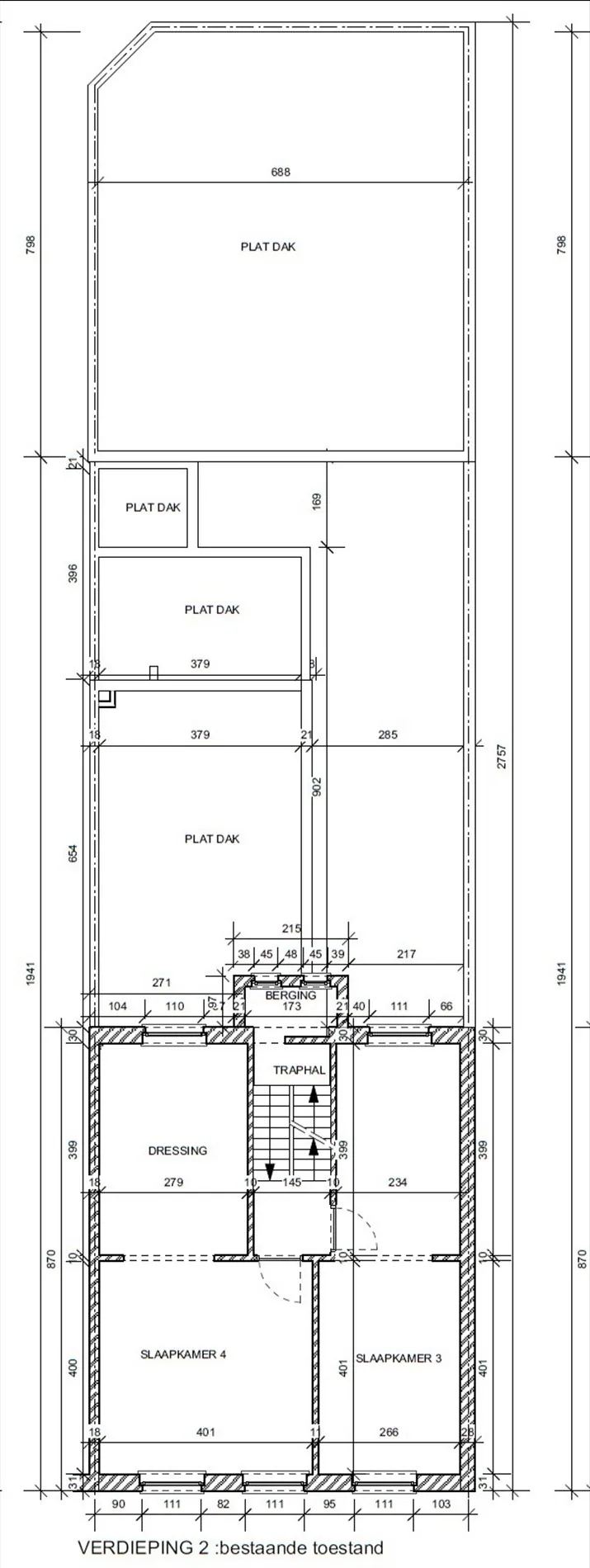
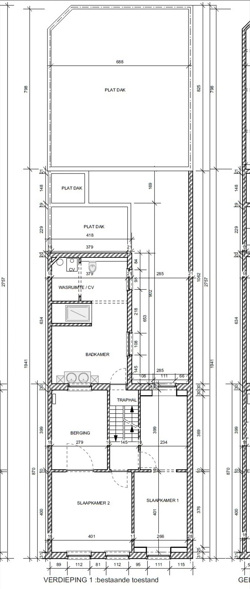
Op de eerste verdieping wachten twee ruime slaapkamers met dressing en een luxueuze badkamer met inloopdouche, ligbad, dubbele lavabo en toilet. De tweede ... verdieping biedt opnieuw twee slaapkamers, met dressing, een apart toilet en uitbreidingsmogelijkheden. De bovenste verdieping is ingericht als studio met eigen keuken en leefruimte, perfect als extra woonunit of om nog een of 2 slaapkamers te creëren. Een volledig betegelde kelder zorgt voor extra bergruimte.
Troeven:
- Dakisolatie aanwezig
- Dubbele beglazing en condensatieketel op gas
- Mogelijkheid tot 8 slaapkamers
- Ruim overdekt terras
- Centrale ligging nabij Rivierenhof
- Renovatie: 2020: heel de benedenverdieping en eerste verdieping, 2022: nieuw dak, 2024: nieuwe badkamer en isolatie en crepi zijmuur
Een woning boordevol mogelijkheden – een bezoek zal je overtuigen! Lees meer Verberg
Ligging
Je woont hier rustig, maar toch centraal: vlak bij de levendige Turnhoutsebaan, met tramverbindingen richting Antwerpen-centrum, én op wandelafstand van het groene Rivierenhof.
Indeling
Achter de authentieke koetspoort bevindt zich de inkomhal en een charmante binnenkoer met stadstuin. De leefruimte vloeit door naar de eetkamer en een volledig vernieuwde, op maat gemaakte keuken met een stijlvol Lacanche-fornuis. Aansluitend vind je een badkamer met douche en toilet, een ruime berging/wasplaats en toegang tot de tuin met overdekt terras.
Op de eerste verdieping wachten twee ruime slaapkamers met dressing en een luxueuze badkamer met inloopdouche, ligbad, dubbele lavabo en toilet. De tweede ... verdieping biedt opnieuw twee slaapkamers, met dressing, een apart toilet en uitbreidingsmogelijkheden. De bovenste verdieping is ingericht als studio met eigen keuken en leefruimte, perfect als extra woonunit of om nog een of 2 slaapkamers te creëren. Een volledig betegelde kelder zorgt voor extra bergruimte.
Troeven:
- Dakisolatie aanwezig
- Dubbele beglazing en condensatieketel op gas
- Mogelijkheid tot 8 slaapkamers
- Ruim overdekt terras
- Centrale ligging nabij Rivierenhof
- Renovatie: 2020: heel de benedenverdieping en eerste verdieping, 2022: nieuw dak, 2024: nieuwe badkamer en isolatie en crepi zijmuur
Een woning boordevol mogelijkheden – een bezoek zal je overtuigen! Lees meer Verberg