Instapklare handelsruimte met commerciële topligging in het hart van Geel
PrijsRoutebeschrijving
Op zoek naar een strategisch gelegen handelsruimte met maximale zichtbaarheid? Deze commerciële ruimte bevindt zich op een absolute toplocatie in het centrum van Geel, op slechts 250 meter van het bruisende marktplein. Dankzij de vlotte verbindingen met omliggende gemeenten en belangrijke invalswegen is bereikbaarheid gegarandeerd.
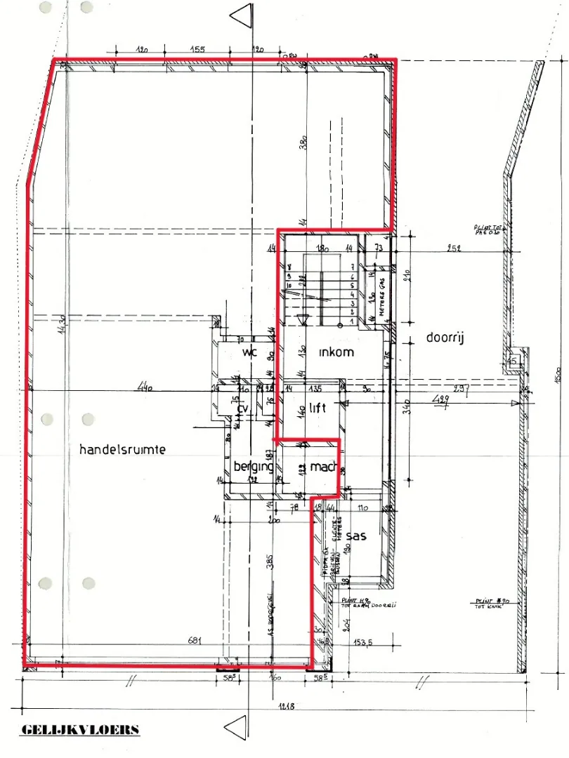
Indeling
De ruimte omvat een lichtrijke en ruime winkel- of kantoorruimte, aangevuld met een praktisch privatief gedeelte met toilet en kitchenette. Verder is er een aparte berging van 8 m² aanwezig.
Troeven
Deze eigendom is uitermate geschikt voor kantooractiviteiten of de uitoefening van een vrij beroep en biedt tal van extra voordelen:
Aparte inkom voor optimale privacy en toegankelijkheid
Brede vitrine van ca. 6 meter voor uitstekende visibiliteit
Energiezuinige verwarming via warmtepomp met aircofunctie
Geïsoleerd dak en dubbele beglazing
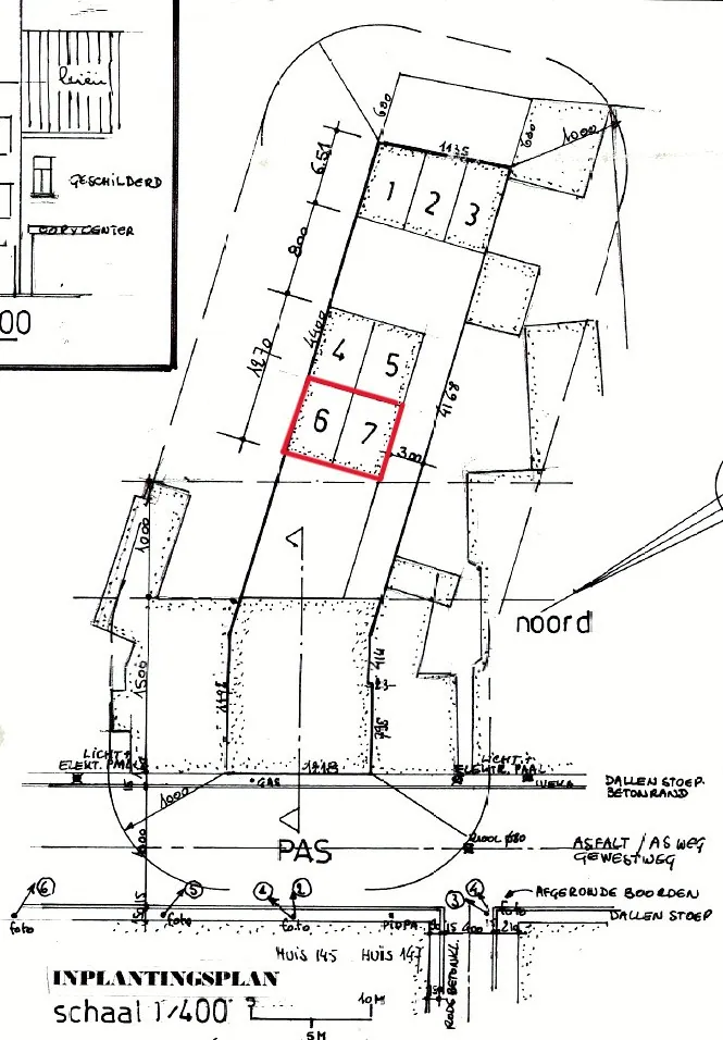
Achteraan bevinden zich twee garages en 2 staanplaatsen.
Indeling
De ruimte omvat een lichtrijke en ruime winkel- of kantoorruimte, aangevuld met een praktisch privatief gedeelte met toilet en kitchenette. Verder is er een aparte berging van 8 m² aanwezig.
Troeven
Deze eigendom is uitermate geschikt voor kantooractiviteiten of de uitoefening van een vrij beroep en biedt tal van extra voordelen:
Aparte inkom voor optimale privacy en toegankelijkheid
Brede vitrine van ca. 6 meter voor uitstekende visibiliteit
Energiezuinige verwarming via warmtepomp met aircofunctie
Geïsoleerd dak en dubbele beglazing
Achteraan bevinden zich twee garages en 2 staanplaatsen.